Michel DEMICHELIS Négociateur
Télécharger la fiche

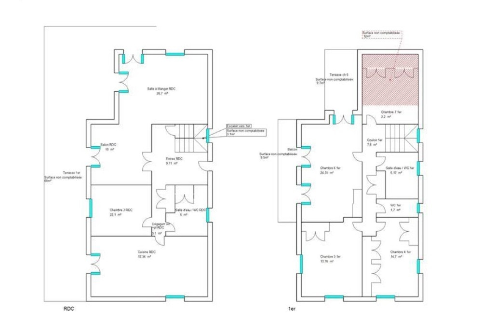
Villa 12 pièce(s) 8 chambre(s) 364.86 m²

Roquebrune-Cap-Martin (06190)
3 500 000 € Référence V10003387

A propos de ce bien

ROQUEBRUNE CAP MARTIN Résidentiel, à 15min de MONACO, VILLA INDIVUELLLE 300m² + VILLA annexe 65m², position dominante avec VUE MER PANORAMIQUE, Jardin Arboré piscinable, Grandes Terrasses Ensoleillées, cuisine d'été, construction de qualité, RARE sur le secteur, fort potentiel à repenser... Classe Energie E315 GES E63 (estimation des coûts annuels d’énergie du logement entre 8.018€ et 10.848€ par an, prix moyens des énergies indexés sur les années 2021 abonnements compris), EFF DARMON Paul 06.64.18.03.34


Les informations sur les risques auxquels ce bien est exposé sont disponibles sur le site Géorisques

Caractéristiques de ce bien

  • Surface 364,86 m²
  • carrez 364,86 m²
  • terrain 1 033 m²
  • séjour 37 m²
  • 8 chambre(s)
  • 4 salle(s) de bain
  • 1 salle(s) d'eau
  • construit en 1967
  • cuisine séparée
  • Chauffage central : chaudière (fioul)
  • 2 garage(s)
  • exposition Est-Ouest
  • 3 niveau(x)
  • vue Panoramique Mer
  • terrasse
  • arboré
  • piscinable
  • interphone

Diagnostics énergétiques

Consommation énergétique
A B C D E F G
Emission de gaz à effet de serre
A B C D E F G

Montant estimé des dépenses annuelles d'énergie de ce logement pour un usage standard est compris entre 8 018 € et 10 848 € . 2021 étant l'année de référence des prix de l'énergie utilisés pour établir cette estimation.

Informations financières

Prix de vente 3 500 000 € Les honoraires d'agence seront intégralement à la charge du vendeur
Taxe foncière annuelle 3 800 €

Calcul des mensualités

* Champs obligatoires